FCI
Главная -> Преобразователи частоты -> FCI

Преимущества преобразователей частоты серии FCI
Преобразователи частоты INSTART серии FCI спроектированы и разработаны в соответствии с высокими стандартами современной российской промышленности.
INSTART серии FCI – это преобразователи частоты высокого качества, не уступающие известным мировым аналогам. Функциональность преобразователей частоты данной серии позволяет использовать их в самых различных областях: химическая, нефтехимическая, целлюлозно- бумажная, цементная, а также в системах водоснабжения, на газопроводах и т.д.
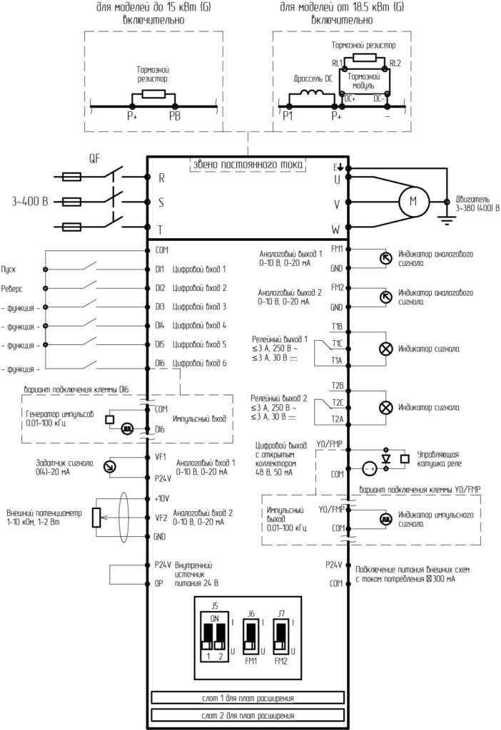
Преобразователи частоты INSTART серии FCI предназначены для регулирования скорости и момента, контроля и защиты синхронных и асинхронных трехфазных электродвигателей.
УНИВЕРСАЛЬНЫЕ ВЕКТОРНЫЕ ПРЕОБРАЗОВАТЕЛИ ЧАСТОТЫ С ШИРОКИМ ДИАПАЗОНОМ МОЩНОСТЕЙ от 0,75 до 630 кВТ
БЫСТРАЯ УСТАНОВКА МОМЕНТА ПРИ ИЗМЕНЕНИИ НАГРУЗКИ
- Векторный с энкодером: скорость реакции <5 мс
- Векторный без энкодера: скорость реакции <20 мс
БЫСТРАЯ И УДОБНАЯ ЭКСПЛУАТАЦИЯ
Заводские предустановки для стандартных применений
ВСТРОЕННЫЕ ЧАСЫ РЕАЛЬНОГО ВРЕМЕНИ*
Фиксирование времени для журнала ошибок и предупреждений*
УПРАВЛЕНИЕ ГРУППОЙ ДО 5 НАСОСОВ:
- каскадный режим;
- циклическая смена насосов;
- автоматическое переключение при сбое в работе*
ПОДКЛЮЧЕНИЕ ДАТЧИКА ЗАЩИТЫ ДВИГАТЕЛЯ PTC
Улучшенная тепловая защита двигателя по сигналу от температурных датчиков в обмотках электродвигателя
ВЫСОКИЙ ПУСКОВОЙ МОМЕНТ ПРИ НИЗКИХ ОБОРОТАХ ДВИГАТЕЛЯ
- Векторный с энкодером:
180% при 0 Гц
- Векторный без энкодера:
150% при 0.5 Гц
РАБОТА В ДВУХ РЕЖИМАХ:
- насосный;
- общепромышленный.
ОПТИМАЛЬНАЯ СОВОКУПНОСТЬ ЗАЩИТНЫХ ФУНКЦИЙ:
- токовая защита от перегрузки двигателя;
- токовая защита мгновенного действия;
- защита двигателя от перегрева;
- защита от замыкания выходных фаз на землю;
- защита от перегрева выходных каскадов;
- защита от повышенного или пониженного напряжения;
- защита от пропадания фазы на входе;
- защита от ошибок передачи данных;
- защита от пропадания фаз на выходе.
Функциональные возможности
Расширенный ПИД-регулятор с функцией спящего режима Обеспечивает управление скоростью электродвигателя для поддержания постоянного значения заданного параметра (например, давления, температуры или расхода воды).
Встроенные таймеры
Два встроенных таймера управляют входными цифровыми сигналами и формируют выходные временные сигналы. Таймеры могут использоваться раздельно или комбинировано цифровыми сигналами, формируют выходные.
Ограничитель момента
Поддержание установленного момента путем ограничения напряжения и тока.
Резервное копирование параметров
Пользователь может использовать резервное копирование параметров с помощью модуля копирования, чтобы восстановить настройки преобразователя частоты в случае ошибки, вызванной сбоем или неправильной работой.
Ограничитель тока
В случаях, если ток превышает установленное значение защиты, включается ограничитель. Ограничитель тока может удерживать ток в установленных пределах для предотвращения выхода преобразователя частоты в ошибку и защиты оборудования.
Встроенный ПЛК
Встроенный четырехъядерный модуль управления. Модуль спроектирован так, что может проводить сложение, вычитание, умножение, деление, оценку размера и выполнение интегральных операций. Каждая операция имеет четыре входа и один выход прямых адресов.
Протоколы передачи данных
Преобразователь частоты имеет возможность связи по протоколам ModBUS RTU, ProfiBUS DP.
Автоматический регулятор напряжения
Предназначен для стабилизации выходного напряжения путём регулирования тока в обмотке возбуждения, а также обеспечивает электронную защиту от перегрузки и падения частоты вращения.
Встроенное виртуальное реле задержки времени
Пять встроенных виртуальных реле задержки времени для проведения простых логических операций с сигналами от цифровых входов и от многофункциональных выходных клемм. Результат логических операций может рассматриваться в качестве эквивалента цифрового входного сигнала, а также может выводиться на многофункциональные выходные клеммы. Кроме того, результаты логических операций могут выводиться с задержкой по времени и с операцией отрицания.
Технические характеристики
| Модель преобразователя частоты | Номинальный ток на выходе (А) | Соответствующий двигатель | ||
| (кВт) | ||||
| G | P | G | P | |
| 3 ~ 380 В ± 15%, 50/60 Гц | ||||
| FCI-G0.75-4B | 2,3 | – | 0,75 | – |
| FCI-G1.5-4B | 3,7 | – | 1,5 | – |
| FCI-G2.2-4B | 5,1 | – | 2,2 | – |
| FCI-G4.0/P5.5-4B | 8,8 | 13 | 4 | 5,5 |
| FCI-G5.5-4B | 13 | – | 5,5 | – |
| FCI-G5.5/P7.5-4B | 13 | 17 | 5,5 | 7,5 |
| FCI-G7.5/P11-4B | 17 | 25 | 7,5 | 11 |
| FCI-G11/P15-4BF | 25 | 32 | 11 | 15 |
| FCI-G15/P18.5-4BF | 32 | 37 | 15 | 18,5 |
| FCI-G18.5/P22-4 | 37 | 45 | 18,5 | 22 |
| FCI-G22/P30-4 | 45 | 60 | 22 | 30 |
| FCI-G30/P37-4 | 60 | 75 | 30 | 37 |
| FCI-G37/P45-4 | 75 | 90 | 37 | 45 |
| FCI-G45/P55-4 | 90 | 110 | 45 | 55 |
| FCI-G55/P75-4 | 110 | 152 | 55 | 75 |
| FCI-G75/P90-4 | 152 | 176 | 75 | 90 |
| FCI-G90/P110-4 | 176 | 210 | 90 | 110 |
| FCI-G110/P132-4 | 210 | 253 | 110 | 132 |
| FCI-G132/P160-4 | 253 | 300 | 132 | 160 |
| FCI-G160/P185-4 | 300 | 340 | 160 | 185 |
| FCI-G185/P200-4 | 340 | 380 | 185 | 200 |
| FCI-G200/P220-4F | 380 | 420 | 200 | 220 |
| FCI-G220-4F | 420 | – | 220 | – |
| FCI-P250-4F | – | 250 | – | 480 |
| FCI-G250/P280-4F | 480 | 540 | 250 | 280 |
| FCI-G280/P315-4F | 540 | 600 | 280 | 315 |
| FCI-G315/P355-4F | 600 | 680 | 315 | 355 |
| FCI-G355/P375-4F | 680 | 710 | 355 | 375 |
| FCI-G375-4F | 710 | – | 375 | – |
| FCI-G400-4F | 750 | – | 400 | – |
| FCI-P500-4F | – | 930 | – | 500 |
| FCI-G500-4F | 930 | – | 500 | – |
| FCI-G630-4F | 1200 | – | 630 | – |
| 3 ~ 660 В ± 15%, 50/60 Гц | ||||
| FCI-G22/P30-6 | 28 | 38 | 22 | 30 |
| FCI-G30/P37-6 | 38 | 46 | 30 | 37 |
| FCI-G37/P45-6 | 46 | 56 | 37 | 45 |
| FCI-G45/P55-6 | 56 | 68 | 45 | 55 |
| FCI-G55/P75-6 | 68 | 92 | 55 | 75 |
| FCI-G75/P90-6 | 92 | 110 | 75 | 90 |
| FCI-G90/P110-6 | 110 | 132 | 90 | 110 |
| FCI-G110/P132-6 | 132 | 155 | 110 | 132 |
| FCI-G132/P160-6 | 155 | 180 | 132 | 160 |
| FCI-G160/P185-6 | 180 | 210 | 160 | 185 |
| FCI-G185/P200-6 | 210 | 225 | 185 | 200 |
| FCI-G200/P220-6F | 225 | 245 | 200 | 220 |
| FCI-G220/P250-6F | 245 | 275 | 220 | 250 |
| FCI-G250/P280-6F | 275 | 305 | 250 | 280 |
| FCI-G280/P315-6F | 305 | 345 | 280 | 315 |
| FCI-G315/P355-6F | 345 | 390 | 315 | 355 |
| FCI-G355/P375-6F | 390 | 430 | 355 | 375 |
| FCI-G375/P400-6F | 415 | 430 | 375 | 400 |
| FCI-G400-6F | 430 | – | 400 | – |
| FCI-P500-6F | – | 540 | – | 500 |
| FCI-G500-6F | 540 | – | 500 | – |
| FCI-P630-6F | – | 630 | – | 630 |
| FCI-G630-6F | 630 | – | 630 | – |
| FCI-P700-6F | – | 720 | – | 700 |
| FCI-G700-6F | 720 | – | 700 | – |
СИСТЕМА ОБОЗНАЧЕНИЯ ПРЕОБРАЗОВАТЕЛЕЙ ЧАСТОТЫ INSTART СЕРИИ FCI

- Серия
- Режим G – общепромышленный*
- Мощность электродвигателя (кВт) для общепромышленного режима (G)
- Режим P – насосный**
- Мощность электродвигателя (кВт) для насосного режима (P)
- Номинальное напряжение:
1~ 220 B± 15%, 50/60 Гц
3~ 380 B± 15%, 50/60 Гц
3 ~ 660 В± 15%, 50/60 Гц
7. Встроенный тормозной модуль
8. Встроенный дроссель постоянного тока
9. Платы расширения (является опцией для преобразователей частоты серии FCI и LCI)
10. Дополнительное защитное покрытие плат лаком
11. Защитное покрытие плат компаундом
12. Встроенный ЭМС фильтр
13. IP54
14. Пожарный режим
*Общепромышленный режим (G)
Используется с нагрузкой с постоянным вращающим моментом. В этом случае величина вращающего момента, необходимого для приведения в действие какого-либо механизма, постоянна независимо от скорости вращения. Примером такого режима работы могут служить конвейеры, экструдеры, компрессоры, скважинные насосы.
**Насосный режим (P)
Используется с нагрузкой с переменным вращающим моментом. Этот момент имеет отношение к нагрузкам, для которых требуется низкий вращающий момент при низкой частоте вращения, а при увеличении скорости вращения требуется более высокий вращающий момент. Типичным примером такого режима являются насосы (насосы с высоким пусковым моментом необходимо подбирать по общепромышленному режиму (G); к таким насосам можно отнести скважинные насосы, насосы для перекачки вязких жидкостей, вакуумные насосы).
Схемы подключения





